PH de 4 Ambientes a Estrenar

4711 ID Propiedad
183 m2 Tamaño
3 Baños

Descripción

PH tipo casa a estrenar en el barrio de Caballito Norte sobre la calle Fragata Sarmiento entre Galicia y Tres Arroyos , a 500 mts de Plaza Irlanda, próximo al metrobus de Avenida J B Justo . El proyecto cuenta con 3 excelente unidades funcionales 4 ambientes, luminosas , orientación Este ,con patio y terraza / balcon terraza ,dependiendo la unidad funcional. El complejo posee cocheras cubiertas y bicicleteros ,en la planta baja se encuentran 2 PH con patio delantero y trasero y las 2 cocheras disponibles . En el primer piso 1 dúplex de 4 ambientes con balcon/terraza en la 1era planta de la unidad + terraza en la 3era planta . Todas las unidades poseen parrilla . No paga expensas . fecha estimada de entrega : Noviembre 2023
LA UNIDAD FUNCIONAL 3, ubicada al frente , tiene acceso a través de un pequeño pasillo de distribución común a todas las unidades, en el area central del complejo, y una escalera por la cual se ingresa a la 1 era planta de la unidad en la que encontramos un Living -Estar (6,00 x 4,20 ) ,toilette con ventilación (1,90 x 0,85 ) y Cocina -Comedor ( 6,00 x 3,00). tanto la cocina como el Living poseen ventanas hacia el frente ( orientacion Este) y hacia el balcon/terraza con parrilla y lavadero ( 8,50 x 1 ,85 ) que da al contrafrente del complejo ( orientacion Oeste ).
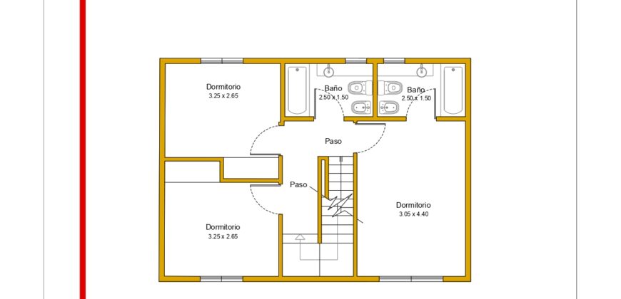
2 da planta cuenta con 2 dormitorios con placard (3,25 x 2,65 cada uno) Baño completo con bañera ( 2,50 x 1,50) y dormitorio en suite ( 4,40 x 3,30 ) con baño completo privado ( 2,50 x 1,50 ) . Los dos baños ofrecen ventilación hacia el exterior .
3 era Planta : Terraza de 48 mt 2

Dirección

  • Dirección fragata presidente Sarmiento 1492
  • País Argentina
  • Province/State
  • Barrio
  • Postal code/ZIP 1416
Abrir con google maps

Ubicación